A Sad Room Becomes Happy Again

A Sad Room Becomes Happy Again

 
IMG_9199.jpg
 

Our client wanted to transform the tight ensuite and include a shower. They requested a bright, bold and contemporary finish to tie in with other bathrooms within the home.

Before

 
 

Design

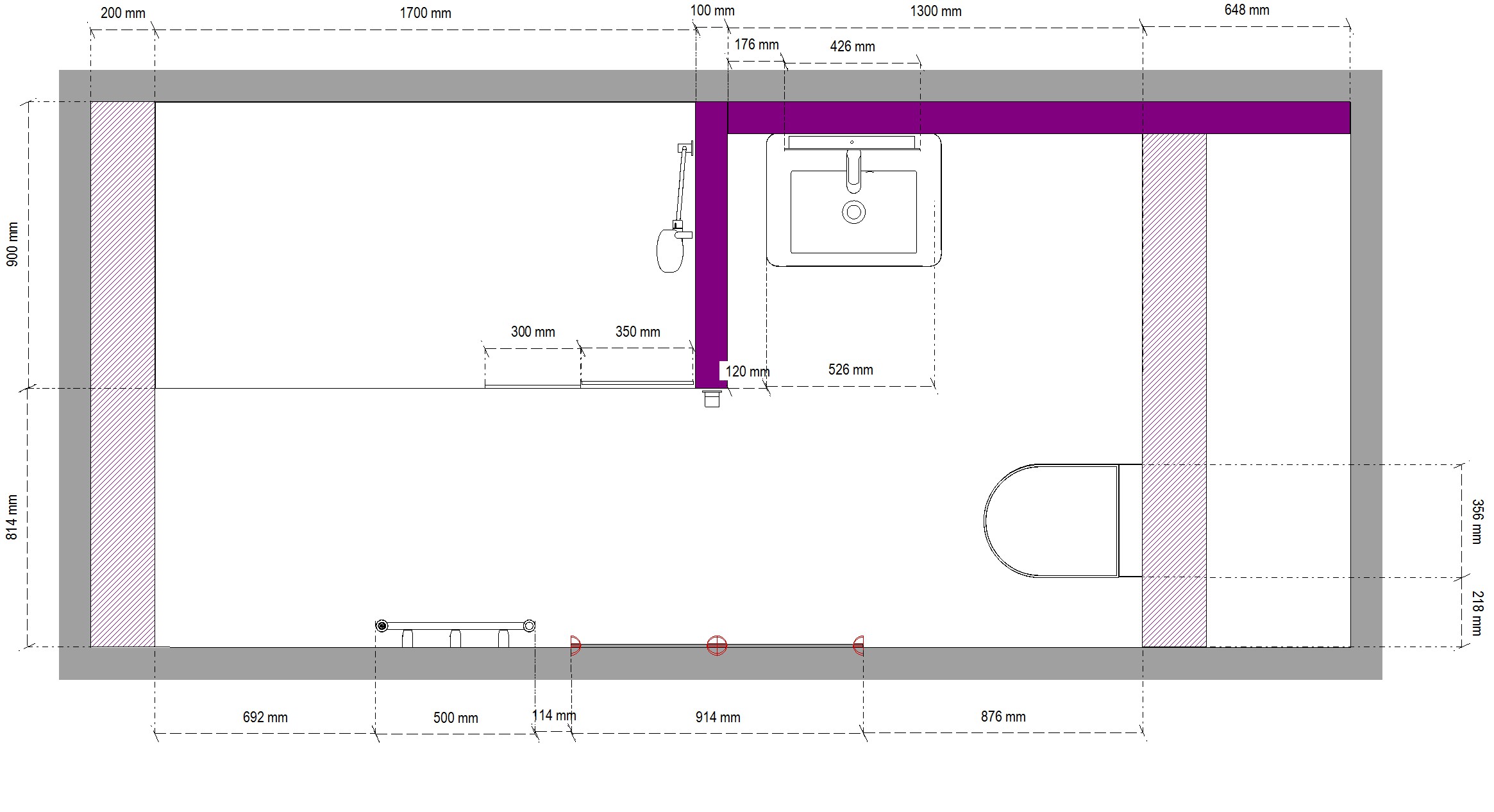
To ensure a visually pleasing effect we were able to use studwork along the outer wall as well as through the middle of the room. The stud work highlighted in purple (see plan to the right) was positioned to give the shower area the highest point of the room. This allowed for the running of the waste pipes and feeds to achieve a clean finish. We were also able to include a full length shower tray and a bespoke screen for splash protection.

Final Dimensional Plan.jpg
 
 

We included an illuminated horizontal recess to give a platform for the customers accessories. The radiator was moved to a position directly outside the entrance for easy access to nice warm towels straight out of the shower. The basin is a neat 50cm, wall hung unit with additional storage. The beautiful slimline; illuminated mirror finishes the ensemble.

The resulting design made the room feel much bigger. The feature tiling and key illumination made what was once a sad room happy again.

After

 
 
 
 
< Previous project
Next Project >